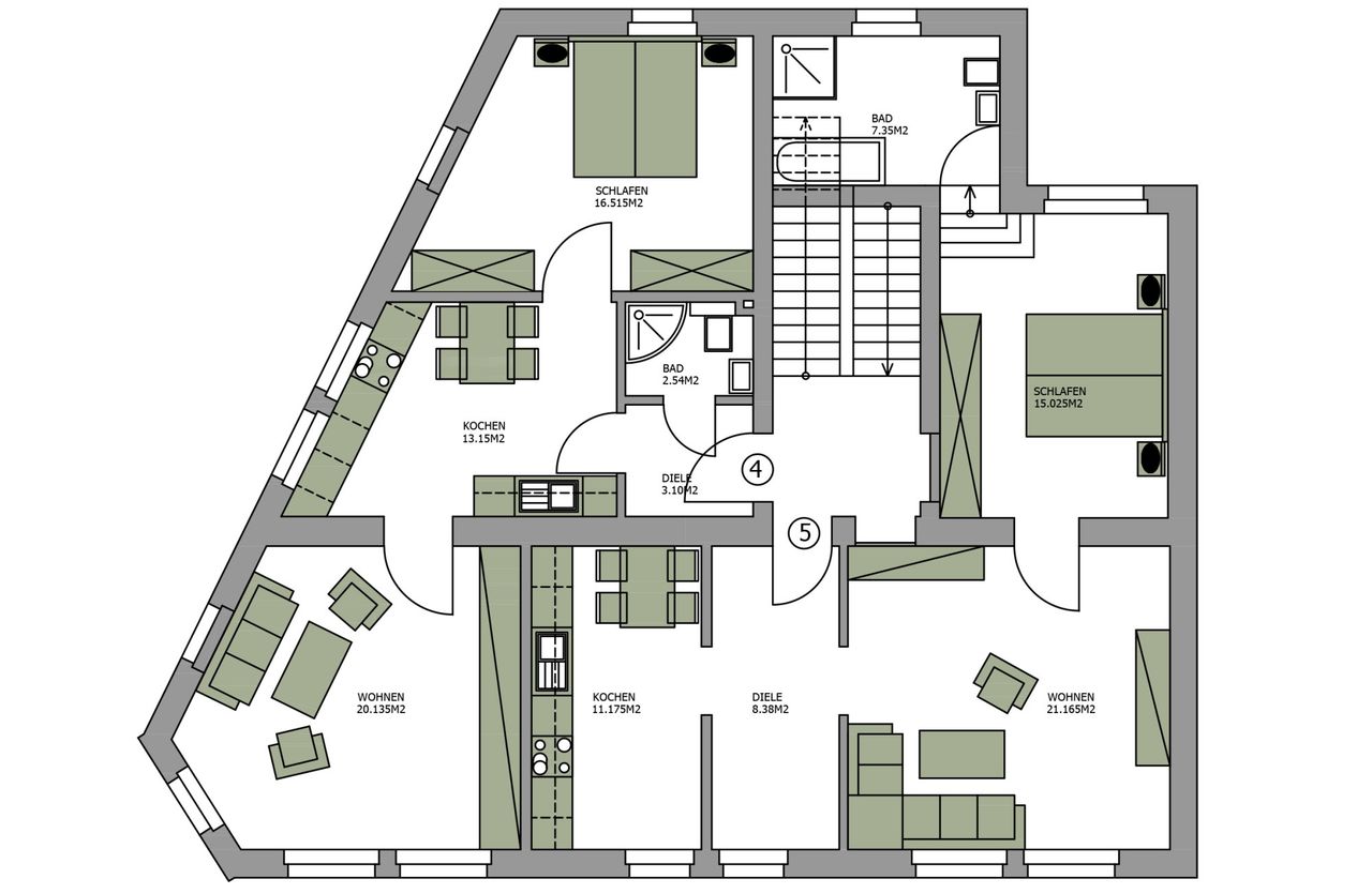
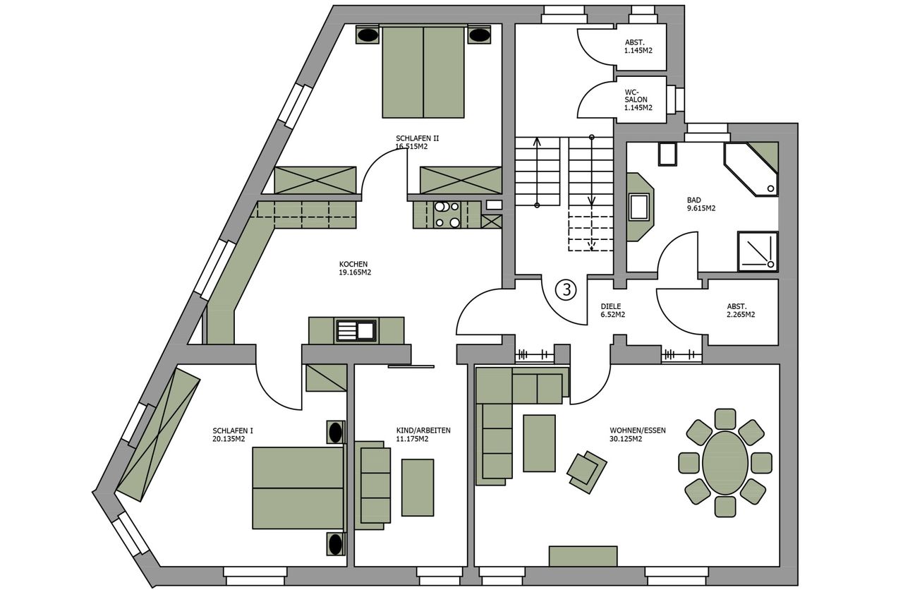
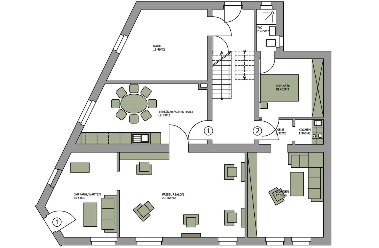
Die Immobilie ist in eine Gewerbeeinheit mit ca. 64 m² Fläche sowie vier Wohnungen aufgeteilt. Die Gesamtwohnfläche beträgt ca. 283 m². Das ca. 1912 errichtete Haus befindet sich auf einem 531 m² großen Grundstück. Die Wohneinheiten sind aufgeteilt in 2 - 2 1/2 Raum-Wohnungen mit Wohnflächen zwischen 35 m² und 63 m². Im 1. Obergeschoss befindet sich eine rd. 115 m² große 4 1/2 Raum-Wohnung, die sich zur Eigennutzung anbietet.
